トップページ
最新情報
ごあいさつ
会社概要
お問い合わせ
リンク集
物件検索
一戸建て
マンション
土地・事務所・その他
トップページ
最新情報
ごあいさつ
会社概要
お問い合わせ
リンク集
物件検索
物件検索
category012245
【リフォーム住宅】 札幌市西区福井2丁目
1598
万円
内外装リフォーム済
【所 在 地】…札幌市西区福井2丁目6番8号
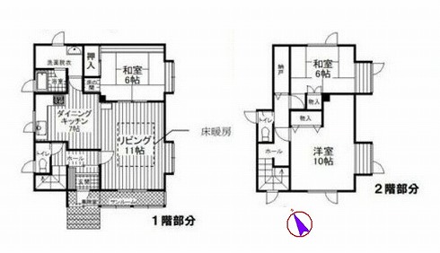
【間 取】…1階L11帖+DK7帖+和室6帖
2階洋室10帖+洋室6帖+納戸
【交 通】…JRバス「福井2丁目」停 徒歩6分
【築年月日】…昭和58年10月
【建物構造】…木造地下1階付2階建
【建物面積】…126.18u(38.16坪)
【土地面積】…172.49u(52.17坪)
【建ぺい率】…50% 【容積率】…80%
【都市計画】…市街化区域
【用途地域】…第1種低層住居専用地域
【現 状】…空
【引渡時期】…相談
【駐 車】…1階車庫1台
【接 道】…南西側10m公道に11.5m面す
【備 考】…内外装リフォーム済、浴室追炊機能付、食洗機、IHクッキングヒーター、1・2階トイレ(温水洗浄便座)
【学 区】…福井野小学校
福井野中学校
category01224
【リフォーム住宅】 札幌市南区石山東5丁目
2598
万円
角地・イワクラホーム施工
【所 在 地】…札幌市南区石山東5丁目5番17号
【間 取】…1階LD14帖+K3.7帖+和室6帖
2階洋室8帖+洋室7.5帖+洋室6帖+納戸約3帖
【交 通】…中央バス「石山東5丁目」停 徒歩5分
【築年月日】…平成18年12月
【建物構造】…木造亜鉛メッキ2階建
【建物面積】…125.86u(38.07坪)
【土地面積】…203.2u(61.4坪)
【建ぺい率】…50% 【容積率】…80%
【都市計画】…市街化区域
【用途地域】…第1種低層住居専用地域
【現 状】…空
【引渡時期】…相談
【駐 車】…敷地内2台
【接 道】…南側8m公道・西側8m公道
【備 考】…1坪浴室、、全居室収納あり、バルコニー、物置
【学 区】…芸術の森小学校
常盤中学校
Supported by DIC-Studio. Shop_v51.
Menu
トップページ
最新情報
ごあいさつ
会社概要
お問い合わせ
リンク集
物件検索
物件検索
一戸建て
マンション
土地・事務所・その他
↑